不管卧室大小,这 9 套布局都适用
发布于2026-03-27
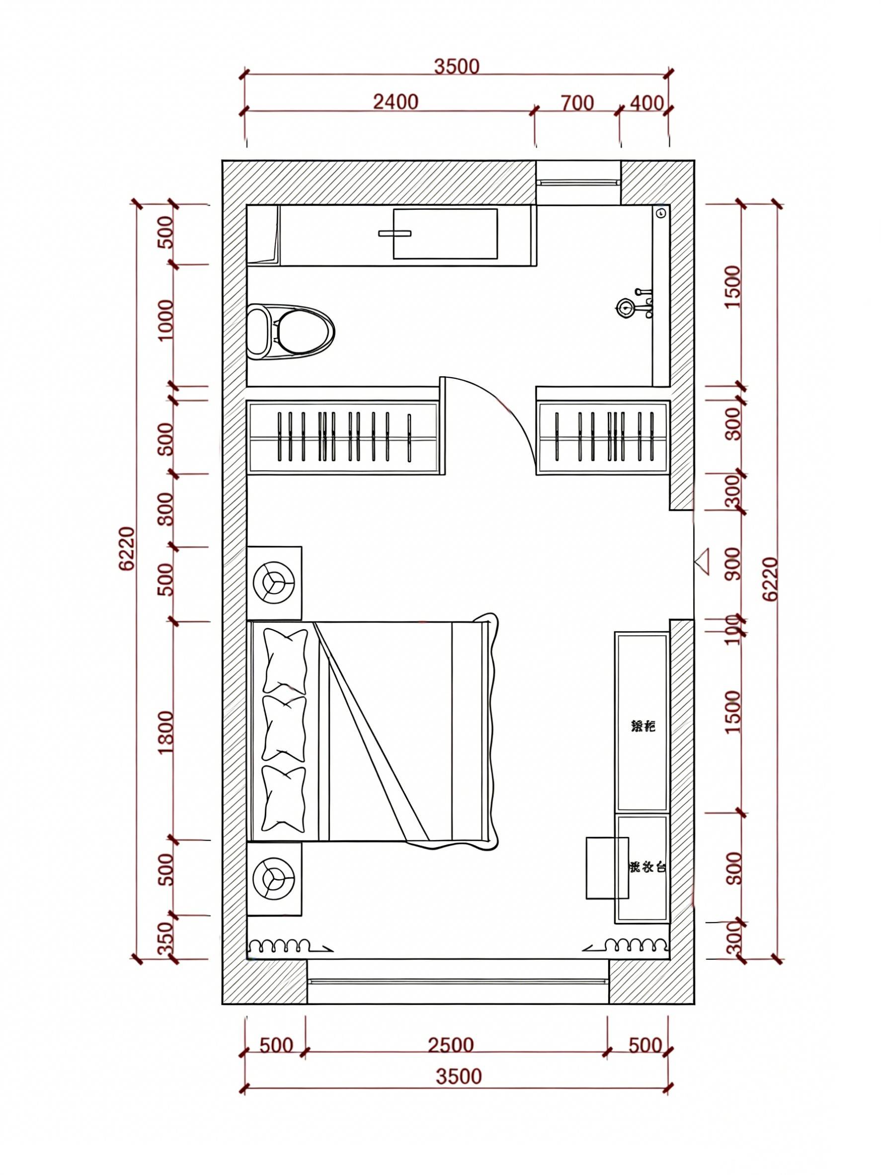
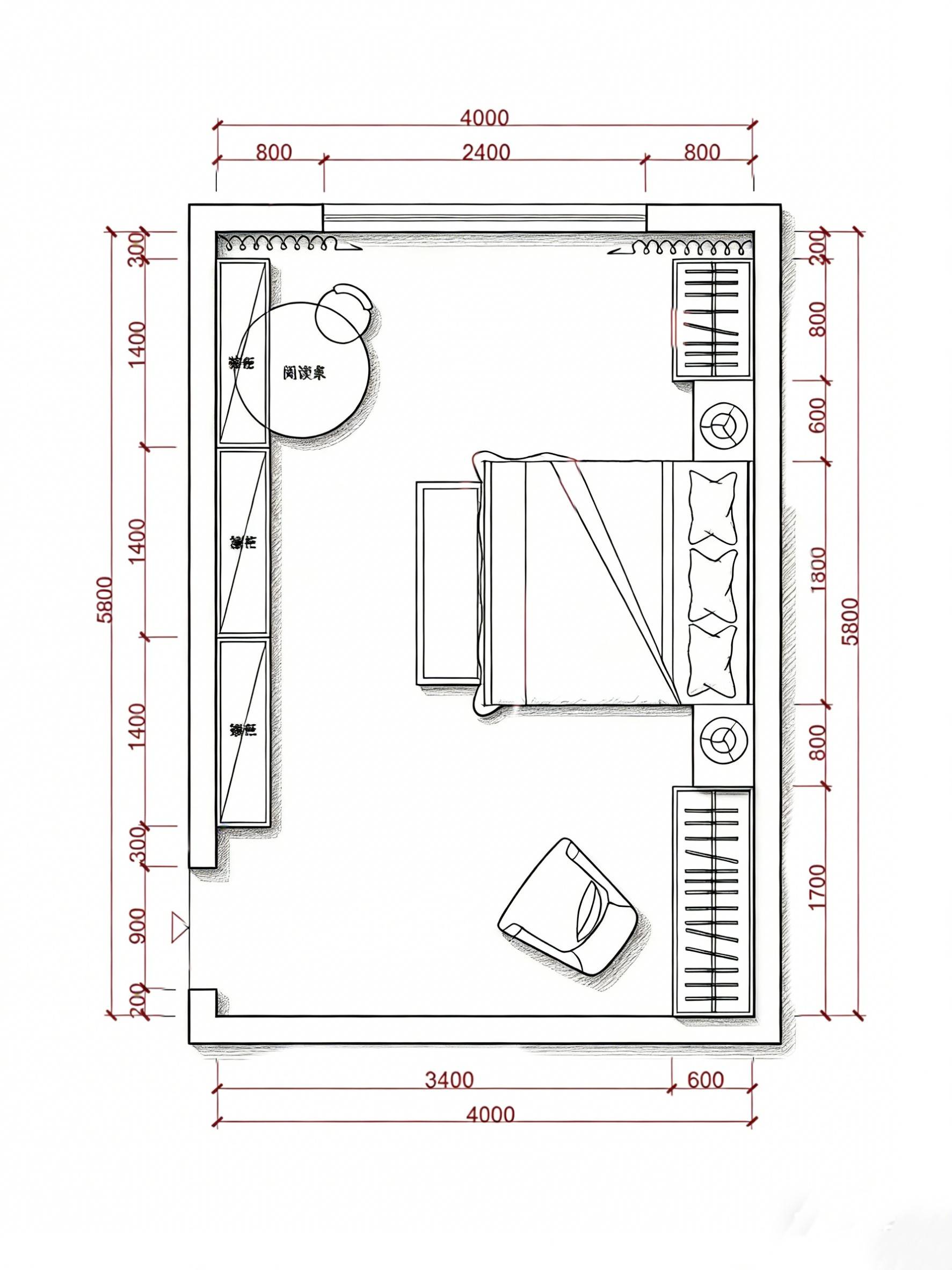
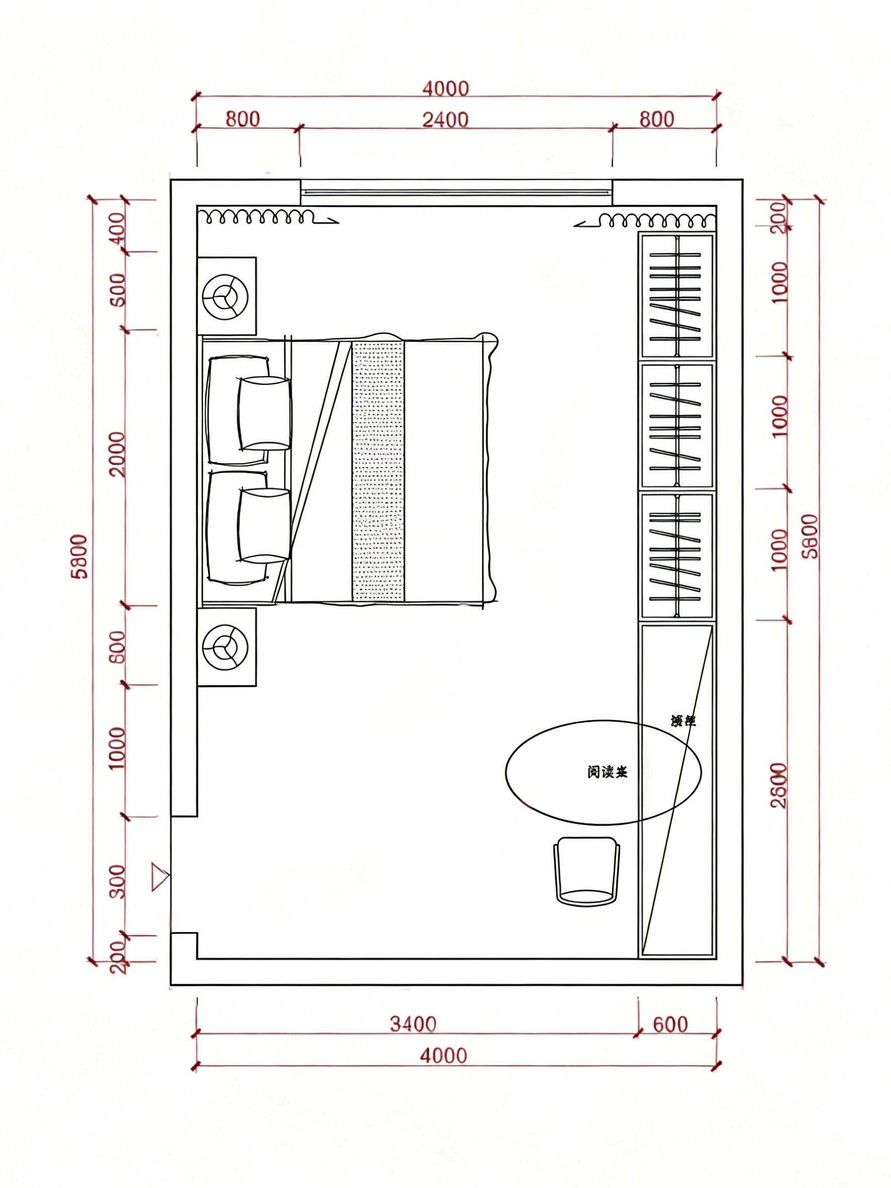
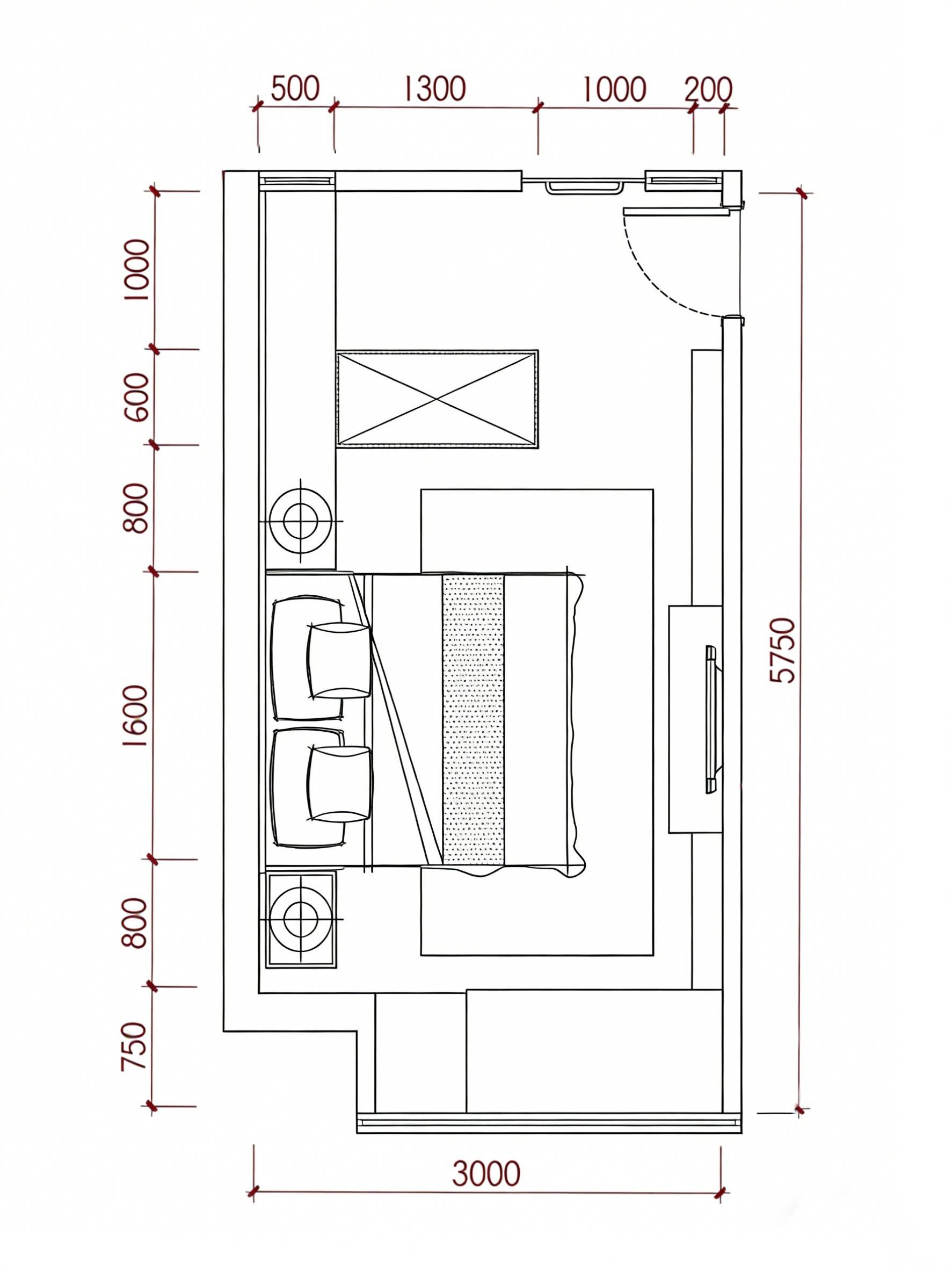
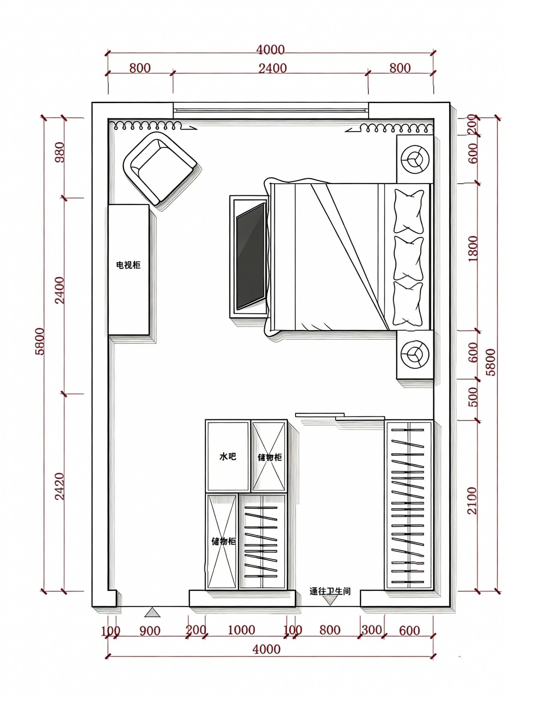
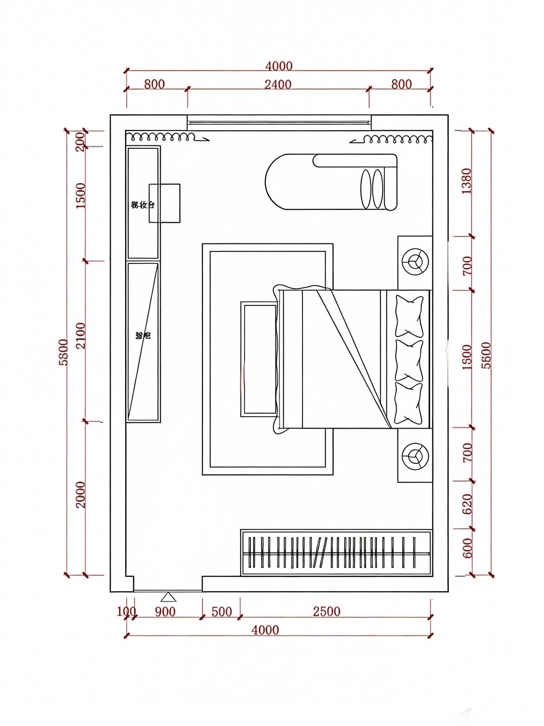
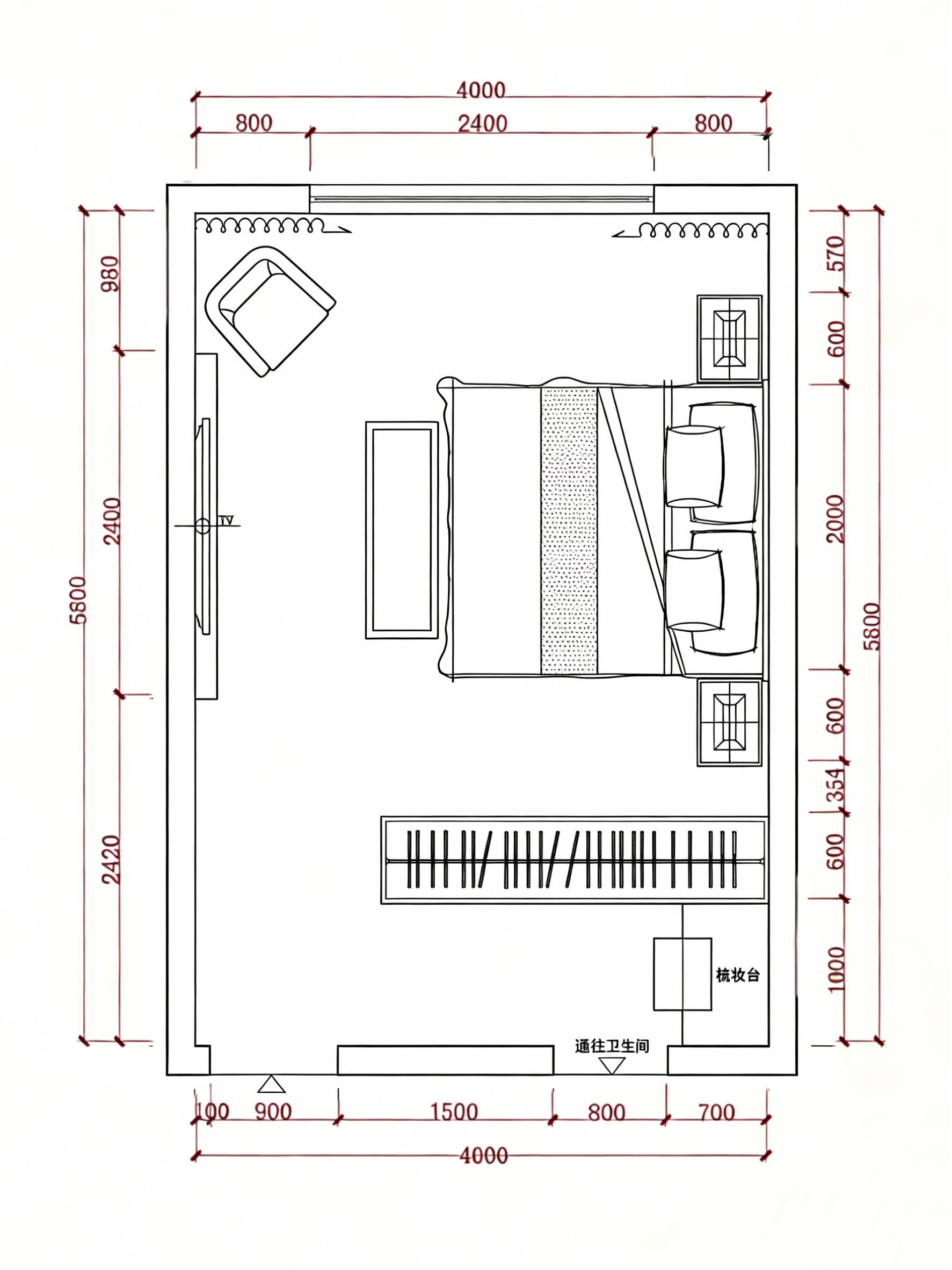
卧室设计最忌讳 “凭感觉摆家具”,很多人花大价钱装完,才发现床太挤、过道太窄、衣柜打不开,越住越闹心!
其实不用瞎琢磨,设计师实测整理的9 种卧室黄金布局尺寸,涵盖 10-20㎡刚需 / 大户型,适配 1.5m/1.8m/2.0m 床,直接套用就能避开 90% 的坑
核心原则只有一个:尺寸适配,动线流畅。
刚需小卧室(10-12㎡),1.5m 床两侧预留 500mm 通行空间,衣柜做 600mm 标准深度,不浪费 1cm;
14-16㎡常规卧室,1.8m 床搭配 800mm 宽衣帽柜,床头留 300mm 插座距离,兼顾收纳与便捷;
大主卧(18-20㎡),可预留 1000mm 更衣区 + 700mm 阅读角,实现睡卧、收纳、休闲一体。 重点避坑:
床尾距离墙面至少 800mm,避免开门磕碰;衣柜与床间距不小于 600mm,拿取衣物不拥挤;
床头插座离地 700mm,睡前充电不弯腰。









浏览204
点赞0
评论0
收藏4
评论 (0)
暂无评论,快来留下一条吧~

