玻璃镜面墙怎么装?施工流程 + 收口做法详解
当把镜面元素运用在室内墙面设计中时,它能够反射出空间环境、自然光线与人的行为变化,在视觉上扩大空间感,同时赋予了空间动态的表达与梦幻般的光影效果。

那么,今天我们就从以下几方面来聊一聊玻璃镜面墙:
1、什么是玻璃镜面墙?
2、玻璃镜面墙的施工工艺
01. 什么是玻璃镜面墙?
www.shejidedao.com丨联系VX:dop024 回复“公众号”加群
1、玻璃镜面墙的定义
玻璃镜面墙,是指将背漆玻璃、镜面玻璃、特殊艺术玻璃等玻璃材质附着在墙体上。

2、玻璃镜面墙的特点
a、装饰性强
饰面材料本身的光泽度和滑润感,配合不同的颜色及样式,便可以营造出不同的装饰效果,同时还可通过反射折射影像及光线,营造出不同层次与质感的空间环境及光影效果,功能性与装饰性兼得。

b、功能性强
硬度高,耐磨性强,常温下是电的不良导体,耐水耐酸碱性强,抗紫外线,抗颜色老化性强,耐污性强,绿色环保,易清洗,易于维护。

c、适用性广
玻璃镜面墙作为室内装饰性墙面,可用于办公楼、展览馆、艺术馆、图书馆、酒店、商场、会所等公共建筑室内墙面,也可以应用于家居空间,适用性广。

d、性价比高
玻璃镜面墙施工工艺简单便捷,原材料成本相对低廉,与具有同样装饰效果的镜面金属材料比较,性价比更高。
02. 玻璃镜面墙的施工工艺
www.shejidedao.com丨联系VX:dop024 回复“公众号”加群
玻璃镜面墙体的安装方式有很多,比如采用上下U型金属槽固定、点式连接、胶粘式等。这里我们就以精装墙体常见的粘贴于墙体上的工艺进行说明。
具体施工流程为:测量、弹线→安装基层龙骨→龙骨验收→安装基层夹板→安装、粘贴玻璃镜面板块
1、测量、弹线
按照设计图纸及板块分格图纸,对应竖龙骨位置,用红外线放线仪将龙骨中线弹到墙面上。通常龙骨采用50轻钢龙骨,间距400mm。

2、安装基层龙骨
龙骨通过U型支撑件与墙体连接,支撑件间距不大于600mm,安装时应保证龙骨外边缘的整体平整度。

△做法示例

△做法示例
3、龙骨验收
龙骨安装完毕,进行验收。封板前应确保基层内机电等管路施工完毕,并通过验收。
4、安装基层夹板
基层夹板采用9mm阻燃夹板,封钉前先根据龙骨双向间距在基层板表面弹墨线,用以确定钉子的固定位置。

△做法示例
安装时从上往下或由中间向两头固定,要求布钉均匀,钉距100-150mm左右,钉尾陷入板面。为避免今后收缩变形,板与板拼接处留3-5mm缝。

△做法示例
对版面大的饰面,基层板宜错缝安装,避免产生通缝而形成集中伸缩应力。相邻板的板边一定要厚薄均匀、一致,以免产生接缝高差。

△版面大的效果示例
5、安装、粘贴玻璃镜面板块
粘贴玻璃板块应采用双面胶及中性玻璃胶,玻璃与玻璃之间预留1-2mm缝隙,确保板块之间伸缩变形不受影响。

△做法示例
6、构造做法
a、玻璃四周应进行磨边。
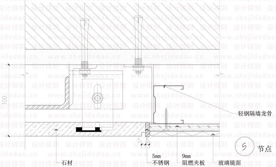
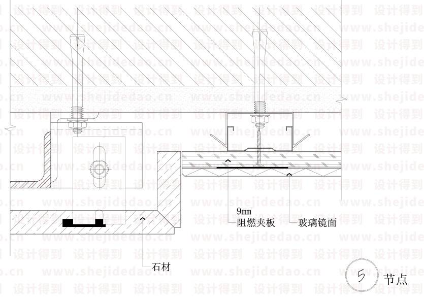
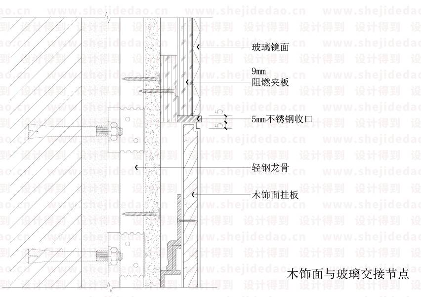
b、玻璃镜面墙面阴阳角及主要收口做法如下:







△做法示例
c、玻璃镜面位于顶部灯槽位置,顶部应进行磨砂处理,否则会将灯槽内部位反射,由于灯槽内相对不易操作,经常施工质量不好,造成人通过反射看到灯槽内部。

△做法示例

△效果示例
d、尽量避免在玻璃镜面上进行开孔,特别是安装开关面板以及安装固定灯具等,由于开口部位应力集中,极易造成玻璃爆裂。对于必须放置的,可以采用镜面不锈钢替代玻璃镜面。

△效果示例

△效果示例
好了,本期的dop干货就到这儿,如有帮助,评论区扣“日拱一卒”,支持一下dop~
- End -
如有帮助,还请 点赞、在看、转发 支持一下
文中部分图片源于网络,如有侵权,请联系小编~
加dop024,领“dop设计大礼包”

更多设计干货,请登录设计得到网站
www.shejidedao.com或点击“阅读原文”开始学习!
👇👇👇


